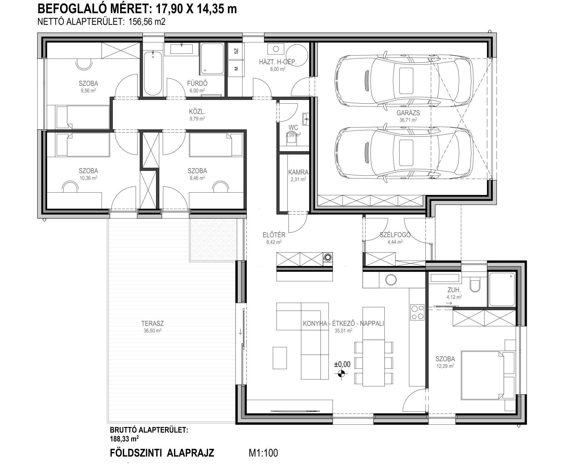
Hernád ház
Egy Leier Típusház tökéletes választás lehet azoknak, akik szeretnek előre tervezni és a terveiket pontosan és kiszámíthatóan megvalósítani, mind anyagi, mind ütemezési szempontból.
Főbb jellemzők
Bruttó alapterület: 188.33 m2
Össz. nettó alapterület: 156.56 m2
Hasznos alapterület: 156.56 m2
Terasz összesen: 36.50 m2
CSOK: ✅ (3 vagy több gyerek)
Tető típusa: lapos és félnyereg
Szobák száma: nappali + 4 szoba
Fürdőszobák száma: 2
Szintek száma: 1
Épületmagasság: 3,58 m
Ideális: 5 fő részére

Fontos!

A Leier Hungária Kft. kivitelezést nem  végez, így kivitelezőről a megrendelőnek saját hatáskörben kell gondoskodnia. Az előregyártott szerkezetek kivitelezésére ajánlott partnereinket keresse kivitelezői adatbázisunkban. A honlapon közzétett, Leier termékekkel dolgozó kivitelezők listája nem teljes körű és kizárólag tájékoztató jellegű.

A Hernád ház Leier termékeinek nettó ára gyári átadással, fuvar nélkül:  14 363 339 Ft*

A Típusházhoz szükséges Leier termékek nettó ára összesen belső hőszigeteléssel (opcionális):  18 100 000 Ft*

Termék neve
Szükséges mennyiség
Leier Kéregfal (LKF) és (LKF-s) (belső hőszigeteléssel)
254 m2
Leier Mesterpanel (LMP)
169 m2
Leier LSK kémény (6 fm)
1 db
Leier Zsalukő ZS30
357 db
Leier Zsalukő ZS15
298 db
Leiertherm 10/50 válaszfal tégla
816 db
MDVA 100 áthidaló
4 db
MDVA 125 áthidaló
5 db
MDVA 175 áthidaló
1 db
Kaiserstein Taverna színes térkő
32 m2
Kerti szegélykő
16 fm
Betoncserép Toscana fekete
680 db
Szellőzőcserép Toscana fekete
45 db

*A feltüntetett árak tájékoztató jellegű nettó termékárak, nem tartalmazzák a szállítás és a kivitelezés költségét valamint a további szükséges építőanyagok és épületszerkezetek (alapozás, aljzat, nyílászárók, szigetelések stb.) árát.



Fontos!
A Leier Hungária Kft. kivitelezést nem  végez, így kivitelezőről a megrendelőnek saját hatáskörben kell gondoskodnia. Az előregyártott szerkezetek kivitelezésére ajánlott partnereinket keresse kivitelezői adatbázisunkban. A honlapon közzétett, Leier termékekkel dolgozó kivitelezők listája nem teljes körű és kizárólag tájékoztató jellegű.

Fontos megjegyeznünk, hogy a vázlattervek nem helyettesítik az egyszerű bejelentéshez szükséges teljes tervdokumentációt. Azt az építtető a saját építészével készítteti el! A Leier vázlatterveit rendelkezésre bocsájtjuk továbbtervezésre szerkeszthető formátumban. Ennek díja a családi házak esetében 300.000 Ft + ÁFA, a garázsoknál 100.000 Ft + ÁFA, amely összeg a későbbi Leier építőanyag vásárláskor bármelyik viszonteladó partnerünknél levásárolható! Amennyiben minden Leier termék beépítésre kerül, a típustervet ajándékba adjuk! A módosított tervek alapján létrejött házakhoz szükséges Leier építőanyagokra is természetesen ingyenesen készítünk tájékoztató jellegű árajánlatot. A típusterv a komplett engedélyezési tervdokumentációval nem egyenértékű terv! Továbbiakért konzultáljon felelős építész tervezőjével!
Felhívjuk figyelmüket, hogy az inspirációtárban ötletek találhatók, illetve az ezekhez a házakhoz szükséges összes Leier építőanyag tájékoztató jellegű árkalkulációja. A feltüntetett árak tájékoztató jellegű nettó termékárak, nem tartalmazzák a szállítás és a kivitelezés költségét, valamint a további szükséges építőanyagok és épületszerkezetek (alapozás, aljzat, nyílászárók, szigetelések stb.) árát. Amennyiben Leier építőanyagot vásárol, a szerződés Ön és építőanyag kereskedő partnerünk között jön majd létre. Az előregyártott elemeket az írásos rendeléstől számított akár 4-8 héten belül az építési helyszínre szállítjuk.

Szakmai segítségnyújtás!

Amennyiben további kérdése van, forduljon Parádi Zsuzsanna kollégánkhoz bizalommal!

Leier
Típusházban gondolkodik? Nem tudja, hogy induljon el? Egy kis segítség!
Típusház vásárlás lépésről lépésre

Fontos, hogy a típustervek kiválasztása előtt már rendelkezzen megfelelő közművesített építési telekkel. Az előregyártott elemek szállításához, nagy súlyuk és méretük miatt, 24 tonnás nyerges vontatóra van szükség. Emiatt a technológiánkkal való építkezés alapfeltétele, hogy a telek megközelíthető legyen egy ekkora méretű tehergépjárművel. Kérdéses lehet a megközelítés abban az esetben, ha keskeny/kanyargós/meredek/nem szilárd felületű a telekhez vezető út, vagy ha magassági/súlykorlátozás van érvényben a területen. A helyszíni adottságok vizsgálatában, a megközelíthetőséget illetően kérje kollégáink segítségét. 

A telek beépítési adatainak (beépítési %, zöldfelület, épületmagasság, stb.) ismeretében válassza ki a leginkább tetsző Típusházat a Leier Típusházak, az Építészek Típusházai vagy az Építészhallgatók Típusházai közül! A beépíthetőségről a helyi önkormányzatnál érdeklődhet. Ebben a fázisban már célszerű bevonni egy építész tervezőt, akire minden esetben szükség lesz a továbbtervezési folyamatban. (terv helyszínre igazítása, esetleges módosítások) Amennyiben nem talál az igényeinek megfelelő Típusházat terveink között, abban az esetben is van megoldás, mert az egyedi tervezésű házak elemeit is le tudjuk gyártani. 

Típusház választékunkban Leier Típusházakat, Építészek Típusházait és Építészhallgatók Típusházait találja.

Leier Típusház választása esetén

Ha Leier Típusházat választott, biztosítjuk Önnek a szükséges tervdokumentációt. Ez a tervdokumentáció azonban még nem egyenértékű a bejelentési/engedélyezési tervvel, ez csupán egy vázlatterv szintű alapterv. A típusterv kiválasztásával párhuzamosan, keressen fel egy megbízható építészt, aki a Helyi Építési Szabályzatnak megfelelően helyszínre igazítja az alap típustervet. Ha szükséges, elvégzi az egyedi igényeidnek megfelelő módosításokat, illetve elkészíti a bejelentési/engedélyezési tervdokumentációt. Természetesen a tervezési folyamat során sem engedjük el építésze kezét, szakembereink ingyenes konzultációs lehetőséget biztosítanak. 

Ha nincs ötlete, hogy honnan válasszon építész tervezőt, az alábbi lehetőségeket javasoljuk:

  • Válasszon építészt az Építészek Típusházai tervezői közül, akivel a kiválasztott Leier Típusház alaptervet is az Ön igényeire tudják szabni!
  • Keresse illetékes területi képviselő vagy termékmenedzser kollégáinkat
  • Tájékozódjon a helyi önkormányzatnál
  • Érdeklődjön az általunk megadott kivitelezőknél

Érdeklődöm a Típusházak iránt - Ajánlatkérés


Leier Típustervet a gombra kattintva, az űrlap kitöltésével igényelhet. Ennek egyszeri díja típusonként 300 000 Ft + ÁFA. A megvalósulásra kerülő típusház esetén ez az összeg a megrendelésnél kerül levonásra az előregyártott építőanyagok végösszegéből.

Kérdés esetén keresse fel építész kollégánkat a +36-30/898-6653-as telefonszámon (hétköznapokon 9-12 óráig) vagy a tipushaz@leier.hu e-mail címen.

Építészek Típusházai vagy Építészhallgatók Típusházai választása esetén

Ezek a tervek a Leier Típusházakkal ellentétben nem vásárolhatók meg! Amennyiben Ön az építész vagy építészhallgatói tervek közül választott, kérjük, vegye fel a kapcsolatot annak tervezőjével, és kérjen ajánlatot a tervezésre, hogy a tervet közösen az Ön igényeire szabhassák! A kiválasztott ház tervezőjének elérhetőségeit megtalálja az adott ház információs adatlapján. Az építész fogja ebben az esetben is elkészíti a bejelentési/engedélyezési tervdokumentációt.  Az így elkészült tervek alapján a házakhoz szükséges Leier építőanyagokra ebben az esetben is ingyenesen készítünk tájékoztató jellegű árajánlatot és a tervezési folyamat során igény esetén szakembereinkkel ingyenes konzultációs lehetőséget biztosítunk. 

Akár már a tervezés folyamata során is felkeresheti azt a szakmailag felkészült kivitelező csapatot, akiket szeretne megbízni otthona felépítésével. Fontos, hogy a Leier kivitelezést nem végez. Kivitelezőről saját magának kell gondoskodnia, de a megfelelő kivitelező csapat kiválasztásában segítségére lehet kivitelezői adatbázisunk, melyet a https://www.leier.hu/kivitelezoi-adatbazis oldalon talál.

A bejelentési/engedélyezési tervdokumentáció alapján kollégáink aktualizálják a Leier termékekre vonatkozó árkalkulációt. Az árkalkuláció elfogadását és az abban szereplő termékek írásos megrendelését követően indul a gyártmánytervezés folyamata, majd a tervezett elemek gyártása, amely akár már 4-8 hét alatt is megvalósulhat.

Miután a kivitelező elkészítette az épület fogadószerkezetét (alapozás, aljzat stb.) a kivitelezés ütemezése szerint, előre egyeztetett időpontban szállítjuk az építkezés helyszínére az előregyártott fal-, födém-, és szükség szerint lépcsőelemeket.

Az előregyártott elemek szállítását minden esetben a Leier Hungária Kft. végzi. A szállítási költség kalkulálásához használja kalkulátorunkat: https://kalkulator.leier.hu/ vagy érdeklődjön kollégáinknál. A Típusházak elemeinek szállításához a Típusház méretétől függően 2-6 fuvar szükséges (lásd: minden egyes Típusháznál részletes információban).


A kéregfalas technológiával egy szerkezetkész ház megépítése lényegesen gyorsabb és egyszerűbb, mint a hagyományos építési módoknál, mert:

  • több munkafázis összevonható az előregyártás során: elektromos szerelvények, kapcsolódobozok, gépészeti áttörések, nyílászárók helye már az üzemi gyártás során belekerül az elemekbe, a terveknek megfelelően

  • a sima betonfelületnek köszönhetően sem a fal, sem a födém nem igényel vakolást, elegendő a glettelés és festés – vagy akár natúr betonfelületként is meghagyható, mint dekorációs elem

  • kevesebb élőmunkát, helyszíni munkát igényel

  • kevesebb építési törmelék keletkezik, ezáltal költséghatékonyabb és környezettudatosabb az építkezés

  • az előregyártásnak köszönhetően az építőelemek méretpontosak, amelyek nagyban megkönnyítik a lakóház későbbi bútorozhatóságát

Mindezeknek köszönhetően, akár 4 nap alatt is állhat a „Leier szerkezet”.

Az építkezés megkezdése után, akár már 4 hónap múlva birtokba veheti új otthonát. Azt ne feledje, hogy a szerkezetépítés csak egy kis szelete a teljes építkezésnek, a kivitelezés tényleges időtartamát egyeztesse a választott kivitelezővel.

Az előregyártott technológiával épített otthonok előnyei:

  • Rendkívül gyors helyszíni építés, amelyhez kevés szakemberre van szükség
  • Állandó, kiemelkedően jó minőségű rendszerelemek
  • Méretpontos termékek, függőleges falak
  • Csökkentett mennyiségben van szükség zsaluzásra és vasalásra
  • A nagyméretű falpanelok folyamatos egymás mellé építésével gyorsan kialakítható a teljes falazat, amelybe már a gyártás során a
  • Szerkezet megépítése lényegesen gyorsabb és egyszerűbb, mint a hagyományos építési módoknál megszokott
  • Az építkezéseken elkerülhető a csúszás, az elemek a megrendelővel egyeztetett ütemterv szerint érkeznek az építkezés helyszínére

Leier Kéregfal (LKF):

  • Falvastagság: 20 cm
  • Nem igényel külső és belső oldali vakolást
  • A Leier Kéregfalat betonnal kell kitölteni

Kéregfal előnyök:

  • Leier Kéregfal használatával hagyományos falazott szerkezetű épülethez képest 4-5 cm-el vékonyabb falszerkezet építhető
  • Környezettudatos, tisztán építhető - az építkezésen minimalizálható az építési hulladék (nincs raklap, maradék anyag, csomagolásból származó hulladék, stb...)
  • A falak - vevői igény szerint - tartalmazhatják az elektromos szerelvények számára szükséges dobozokat, gégecsöveket

Mesterpanel előnyök:

  • Gyors, méretpontos, méretre szabott
  • Kedvező ár/érték arány, gyorsan építhető
  • A födémbe előre be van építve a mennyezetfűtéshez szükséges gépészeti előkészítés
  • A mesterpanelbe épített csővezetékek egyaránt alkalmasak fűtő- és hűtővíz szállítására
Amennyiben érdeklődik Típusházaink iránt vegye fel kollégáinkkal a kapcsolatot!

Felhívjuk figyelmüket, hogy a Leier a típusházak koncepcióját, valamint az ezekhez szükséges Leier építőanyagok tájékoztató jellegű költségbecslését biztosítja. Az árak nem tartalmazzák a szállítás, a kivitelezés, illetve az olyan további szerkezeti elemek költségét, mint az alapozás, aljzat, nyílászárók vagy szigetelések.

Fontos, hogy a Leier kivitelezési munkát nem végez – a kivitelezőről minden esetben a megrendelőnek kell gondoskodnia. Ajánlott kivitelező partnereink elérhetők kivitelezői adatbázisunkban.

Kivitelezők mondták
Az elmúlt egy évben volt szerencsénk nekünk is Leier oktatásokon részt venni majd belevágni a típusházak kivitelezésébe.

Sokan még mindig ódzkodnak az új építési technológiáktól, de örömmel látjuk, hogy megannyian érdeklődnek és fedezik fel az előregyártott technológia előnyeit. Tapasztalatink szerint sokkal kiszámíthatóbb, modernebb és stílusosabb formája az építkezésnek, a hagyományos építési formákkal szemben. Reméljük, hogy a jövőben még többen lesznek nyitottak az olyan hatékony építési megoldásokra, amelyet Leier típusházakkal nyújthatunk.

Generálkommandó
Generálkommandó
Székely József - ügyvezető
Jelenleg is több, mint 10 Típusház építése van folyamatban, de hamarosan további projektek indulnak, amelyek között vannak 70 m2-től 270 m2-ig mindenféle típusú otthonok.

1 éve építünk Leier Típusházakat és Leier technológiával megvalósított egyedi tervezésű otthonokat. Azért szeretjük, mert innovatív, kiszámítható és minden a terveknek megfelelően alakul, ezért tud egy családi ház 6 hónap alatt elkészülni beköltözhető állapotra. Az előnye, hogy teljes értékű ház mind funkcionalitás, mind értékállóság szempontjából és bármelyik bank kedvező feltételekkel finanszírozza az építkezést ezzel a technológiával.

Kohlberger Bau Kft.
Kohlberger Bau Kft.
Hódos Krisztián - projektvezető
Árajánlatkérés