Berettyó ház
Egy Leier Típusház tökéletes választás lehet azoknak, akik szeretnek előre tervezni és a terveiket pontosan és kiszámíthatóan megvalósítani, mind anyagi, mind ütemezési szempontból.
Főbb jellemzők
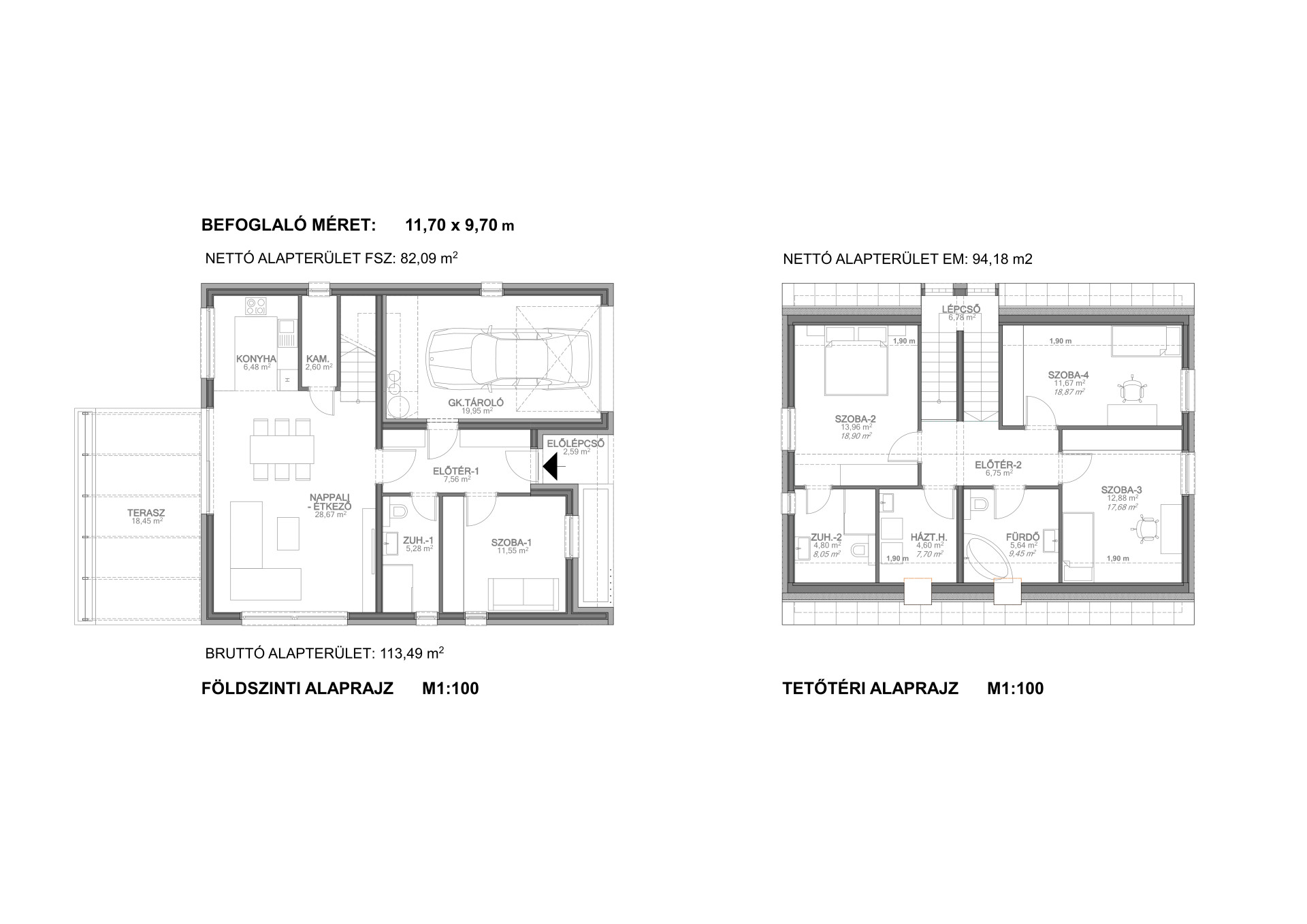
Bruttó alapterület: 113.49 m2
Össz. nettó alapterület (földszint + emelet): 149.17 m2
Hasznos alapterület (földszint + emelet): 176.27 m2
Terasz összesen: 18.45 m2
CSOK: ✅ (3 vagy több gyerek)
Tető típusa: nyeregtető, 40 fokos hajlásszög
Szobák száma: nappali + 4 szoba
Fürdőszobák száma: 3
Szintek száma: 2
Épületmagasság: 4,34 m
Ideális: 4-5 fő részére
Energetikai besorolás: BB

A Berettyó ház Leier termékeinek nettó ára gyári átadással, fuvar nélkül: 18 649 097 Ft*


Termék neve
Szükséges mennyiség
Leier Kéregfal (LKF)
330 m2
Leier Mesterpanel (LMP)
141 m2
Leier egyeneskarú lépcső (LEL)
1 db
Leier Zsalukő ZS30
34 m2
Leier LSK kémény
7 fm
Leiertherm 10/50 válaszfal tégla
131 m2
MDVA 100 áthidaló
3 db
MDVA 125 áthidaló
6 db
Kaiserstein Taverna színes térkő
50 m2
Kerti szegélykő
60 fm/db
Granite betoncserép
1460 db
Granite kúpcserép
31 db
Granite kezdő kúpcserép (db)
2 db
Granite szellőzőcserép
20 db
*A feltüntetett ár tájékoztató jellegű nettó termékár, nem tartalmazza a szállítás és a kivitelezés költségét valamint a további szükséges építőanyagok és épületszerkezetek (alapozás, aljzat, nyílászárók, szigetelések stb.) árát.

Berettyó ház letölthető anyagkiírás listaáron

Fontos!

A Leier Hungária Kft. kivitelezést nem végez, így kivitelezőről a megrendelőnek saját hatáskörben kell gondoskodnia. Az előregyártott szerkezetek kivitelezésére ajánlott partnereinket keresd kivitelezői adatbázisunkban! Kivitelezői adatbázis  A honlapon közzétett, Leier termékekkel dolgozó kivitelezők listája nem teljes körű és kizárólag tájékoztató jellegű.

Az itt található tervek megalkotására 2022-ben a Leier ötletpályázatot írt ki „Házat, de gyorsan!” címmel építészek és építészhallgatók körében. A pályázatokat neves szakemberekből álló zsűri bírálta el és választotta ki azokat, amelyekkel a Leier típusház választékát bővítette. Ennek eredményeképpen 6 új, 5 tagú család számára tervezett CSOK kompatibilis, energiahatékony, inspiráló családi ház tervet talál ebben a kategóriában. Ezek a tervek a Leier Típusházakkal ellentétben nem vásárolhatók meg! Amennyiben Ön az építész vagy építészhallgatói terv valamelyikében látta meg álmai otthonát, kérjük, vegye fel a kapcsolatot annak tervezőjével, hogy ajánlatot kérhessen a tervezésre és a tervet közösen az Ön családja igényeire szabhassák! Elérhetőségeit megtalálja az adott ház információs adatlapján. Az így elkészült tervek alapján létrejött házakhoz szükséges Leier építőanyagokra is természetesen ebben az esetben is ingyenesen készítünk tájékoztató jellegű árajánlatot.

Felhívjuk figyelmüket, hogy az inspirációtárban ötletek találhatók, illetve az ezekhez a házakhoz szükséges összes Leier építőanyag tájékoztató jellegű árkalkulációja. A feltüntetett árak tájékoztató jellegű nettó termékárak, nem tartalmazzák a szállítás és a kivitelezés költségét, valamint a további szükséges építőanyagok és épületszerkezetek (alapozás, aljzat, nyílászárók, szigetelések stb.) árát. Amennyiben Leier építőanyagot vásárol, a szerződés Ön és építőanyag kereskedő partnerünk között jön majd létre. Az előregyártott elemeket az írásos rendeléstől számított akár 4-8 héten belül az építési helyszínre szállítjuk.

Vegye fel a kapcsolatot az építésszel az alábbi elérhetőségeken, hogy közösen az ön igényeire igazíthassák a terveket!
Építésziroda
Balmiterv építész iroda
Vezető tervező
Balmaz Gábor
A háztervvel kapcsolatos kérdések esetén kérjük, kollégánkkal vegye fel a kapcsolatot!
Balmaz Gábor
Telefonszám:
+36-20/4927-710
E-mail cím:
balmi79@gmail.com
Postacím
4026 Debrecen, Péterfia u. 4.
Weboldal
https://balmiterv.hu/

Szakmai segítségnyújtás!

Amennyiben további kérdése van, forduljon Parádi Zsuzsanna kollégánkhoz bizalommal!

Leier
Típusház vásárlás lépésről lépésre

Fontos, hogy a típustervek kiválasztása előtt már rendelkezzen megfelelő közművesített építési telekkel. Az előregyártott elemek szállításához, nagy súlyuk és méretük miatt, 24 tonnás nyerges vontatóra van szükség. Emiatt a technológiánkkal való építkezés alapfeltétele, hogy a telek megközelíthető legyen egy ekkora méretű tehergépjárművel. Kérdéses lehet a megközelítés abban az esetben, ha keskeny/kanyargós/meredek/nem szilárd felületű a telekhez vezető út, vagy ha magassági/súlykorlátozás van érvényben a területen. A helyszíni adottságok vizsgálatában, a megközelíthetőséget illetően kérje kollégáink segítségét. 

A telek beépítési adatainak (beépítési %, zöldfelület, épületmagasság, stb.) ismeretében válassza ki a leginkább tetsző Típusházat a Leier Típusházak, az Építészek Típusházai vagy az Építészhallgatók Típusházai közül! A beépíthetőségről a helyi önkormányzatnál érdeklődhet. Ebben a fázisban már célszerű bevonni egy építész tervezőt, akire minden esetben szükség lesz a továbbtervezési folyamatban. (terv helyszínre igazítása, esetleges módosítások) Amennyiben nem talál az igényeinek megfelelő Típusházat terveink között, abban az esetben is van megoldás, mert az egyedi tervezésű házak elemeit is le tudjuk gyártani. 

Típusház választékunkban Leier Típusházakat, Építészek Típusházait és Építészhallgatók Típusházait találja.

Leier Típusház választása esetén

Ha Leier Típusházat választott, biztosítjuk Önnek a szükséges tervdokumentációt. Ez a tervdokumentáció azonban még nem egyenértékű a bejelentési/engedélyezési tervvel, ez csupán egy vázlatterv szintű alapterv. A típusterv kiválasztásával párhuzamosan, keressen fel egy megbízható építészt, aki a Helyi Építési Szabályzatnak megfelelően helyszínre igazítja az alap típustervet. Ha szükséges, elvégzi az egyedi igényeidnek megfelelő módosításokat, illetve elkészíti a bejelentési/engedélyezési tervdokumentációt. Természetesen a tervezési folyamat során sem engedjük el építésze kezét, szakembereink ingyenes konzultációs lehetőséget biztosítanak. 

Ha nincs ötlete, hogy honnan válasszon építész tervezőt, az alábbi lehetőségeket javasoljuk:

  • Válasszon építészt az Építészek Típusházai tervezői közül, akivel a kiválasztott Leier Típusház alaptervet is az Ön igényeire tudják szabni!
  • Keresse illetékes területi képviselő vagy termékmenedzser kollégáinkat
  • Tájékozódjon a helyi önkormányzatnál
  • Érdeklődjön az általunk megadott kivitelezőknél

Érdeklődöm a Típusházak iránt - Ajánlatkérés


Leier Típustervet a gombra kattintva, az űrlap kitöltésével igényelhet. Ennek egyszeri díja típusonként 300 000 Ft + ÁFA. A megvalósulásra kerülő típusház esetén ez az összeg a megrendelésnél kerül levonásra az előregyártott építőanyagok végösszegéből.

Kérdés esetén keresse fel építész kollégánkat a +36-30/898-6653-as telefonszámon (hétköznapokon 9-12 óráig) vagy a tipushaz@leier.hu e-mail címen.

Építészek Típusházai vagy Építészhallgatók Típusházai választása esetén

Ezek a tervek a Leier Típusházakkal ellentétben nem vásárolhatók meg! Amennyiben Ön az építész vagy építészhallgatói tervek közül választott, kérjük, vegye fel a kapcsolatot annak tervezőjével, és kérjen ajánlatot a tervezésre, hogy a tervet közösen az Ön igényeire szabhassák! A kiválasztott ház tervezőjének elérhetőségeit megtalálja az adott ház információs adatlapján. Az építész fogja ebben az esetben is elkészíti a bejelentési/engedélyezési tervdokumentációt.  Az így elkészült tervek alapján a házakhoz szükséges Leier építőanyagokra ebben az esetben is ingyenesen készítünk tájékoztató jellegű árajánlatot és a tervezési folyamat során igény esetén szakembereinkkel ingyenes konzultációs lehetőséget biztosítunk. 

Akár már a tervezés folyamata során is felkeresheti azt a szakmailag felkészült kivitelező csapatot, akiket szeretne megbízni otthona felépítésével. Fontos, hogy a Leier kivitelezést nem végez. Kivitelezőről saját magának kell gondoskodnia, de a megfelelő kivitelező csapat kiválasztásában segítségére lehet kivitelezői adatbázisunk, melyet a https://www.leier.hu/kivitelezoi-adatbazis oldalon talál.

A bejelentési/engedélyezési tervdokumentáció alapján kollégáink aktualizálják a Leier termékekre vonatkozó árkalkulációt. Az árkalkuláció elfogadását és az abban szereplő termékek írásos megrendelését követően indul a gyártmánytervezés folyamata, majd a tervezett elemek gyártása, amely akár már 4-8 hét alatt is megvalósulhat.

Miután a kivitelező elkészítette az épület fogadószerkezetét (alapozás, aljzat stb.) a kivitelezés ütemezése szerint, előre egyeztetett időpontban szállítjuk az építkezés helyszínére az előregyártott fal-, födém-, és szükség szerint lépcsőelemeket.

Az előregyártott elemek szállítását minden esetben a Leier Hungária Kft. végzi. A szállítási költség kalkulálásához használja kalkulátorunkat: https://kalkulator.leier.hu/ vagy érdeklődjön kollégáinknál. A Típusházak elemeinek szállításához a Típusház méretétől függően 2-6 fuvar szükséges (lásd: minden egyes Típusháznál részletes információban).


A kéregfalas technológiával egy szerkezetkész ház megépítése lényegesen gyorsabb és egyszerűbb, mint a hagyományos építési módoknál, mert:

  • több munkafázis összevonható az előregyártás során: elektromos szerelvények, kapcsolódobozok, gépészeti áttörések, nyílászárók helye már az üzemi gyártás során belekerül az elemekbe, a terveknek megfelelően

  • a sima betonfelületnek köszönhetően sem a fal, sem a födém nem igényel vakolást, elegendő a glettelés és festés – vagy akár natúr betonfelületként is meghagyható, mint dekorációs elem

  • kevesebb élőmunkát, helyszíni munkát igényel

  • kevesebb építési törmelék keletkezik, ezáltal költséghatékonyabb és környezettudatosabb az építkezés

  • az előregyártásnak köszönhetően az építőelemek méretpontosak, amelyek nagyban megkönnyítik a lakóház későbbi bútorozhatóságát

Mindezeknek köszönhetően, akár 4 nap alatt is állhat a „Leier szerkezet”.

Az építkezés megkezdése után, akár már 4 hónap múlva birtokba veheti új otthonát. Azt ne feledje, hogy a szerkezetépítés csak egy kis szelete a teljes építkezésnek, a kivitelezés tényleges időtartamát egyeztesse a választott kivitelezővel.

Amennyiben érdeklődik Típusházaink iránt vegye fel kollégáinkkal a kapcsolatot!
Kivitelezők mondták
Az elmúlt egy évben volt szerencsénk nekünk is Leier oktatásokon részt venni majd belevágni a típusházak kivitelezésébe.

Sokan még mindig ódzkodnak az új építési technológiáktól, de örömmel látjuk, hogy megannyian érdeklődnek és fedezik fel az előregyártott technológia előnyeit. Tapasztalatink szerint sokkal kiszámíthatóbb, modernebb és stílusosabb formája az építkezésnek, a hagyományos építési formákkal szemben. Reméljük, hogy a jövőben még többen lesznek nyitottak az olyan hatékony építési megoldásokra, amelyet Leier típusházakkal nyújthatunk.

Generálkommandó
Generálkommandó
Székely József - ügyvezető
Jelenleg is több, mint 10 Típusház építése van folyamatban, de hamarosan további projektek indulnak, amelyek között vannak 70 m2-től 270 m2-ig mindenféle típusú otthonok.

1 éve építünk Leier Típusházakat és Leier technológiával megvalósított egyedi tervezésű otthonokat. Azért szeretjük, mert innovatív, kiszámítható és minden a terveknek megfelelően alakul, ezért tud egy családi ház 6 hónap alatt elkészülni beköltözhető állapotra. Az előnye, hogy teljes értékű ház mind funkcionalitás, mind értékállóság szempontjából és bármelyik bank kedvező feltételekkel finanszírozza az építkezést ezzel a technológiával.

Kohlberger Bau Kft.
Kohlberger Bau Kft.
Hódos Krisztián - projektvezető
Árajánlatkérés